Wettbewerb Neues Luzerner Theater, 2022

Die beiden Wahrzeichen von Luzern, der Wasserturm und die Jesuitenkirche prägen die linke Flussfront. Diesen Monumenten wird das neue Luzerner Theater als drittes Monument hinzugefügt. Eine Auffüllung des Leerraums zwischen der Jesuitenkirche und den bestehenden Blockrandbebauungen der Bahnhofstrasse mit der geforderten Baumasse würde zu wenig Gewinn schaffen, weshalb ein Volumen vorgeschlagen wird, das die Nutzungen in die Höhe stapelt, vorne nahe an die Flusskante reicht und westseitig einen respektablen Abstand zur Jesuitenkirche wahrt. Das neue Volumen gibt dem Bahnhofstrassenraum und dem Jesuitenplatz einen räumlichen Abschluss, der für beide Stadträume gewinnbringend ist. Der Platz zwischen Jesuitenkirche und neuem Theater als drittem Stadtraumelement wird im rückwärtigen südlichen Teil durch eine Baumgruppe akzentuiert. Die Personenströme zwischen Seebrücke und Reussbrücke sind nicht unterbunden, da das Erd- und das Foyergeschoss um das Mass der doppelreihigen Baumpromenade zurückversetzt sind. In den Obergeschossen kragt der Bau in acht Metern Höhe aus und schafft unter dem Gebäude einen wettergeschützten Raum für den Besucherstrom und die Zirkulation der Passanten.

Die mittleren der vier markanten Stützen unter der Auskragung schaffen eine klare Adresse für den Haupteingang. Zuerst wird ein grosser Windfang betreten, von wo drei Eingänge abgehen: Auf der einen Seite der Eingang ins Theater, gegenüber der Eingang ins Restaurant und geradeaus an der engsten Stelle der Eingang zum Lift, der ins Dachrestaurant führt.

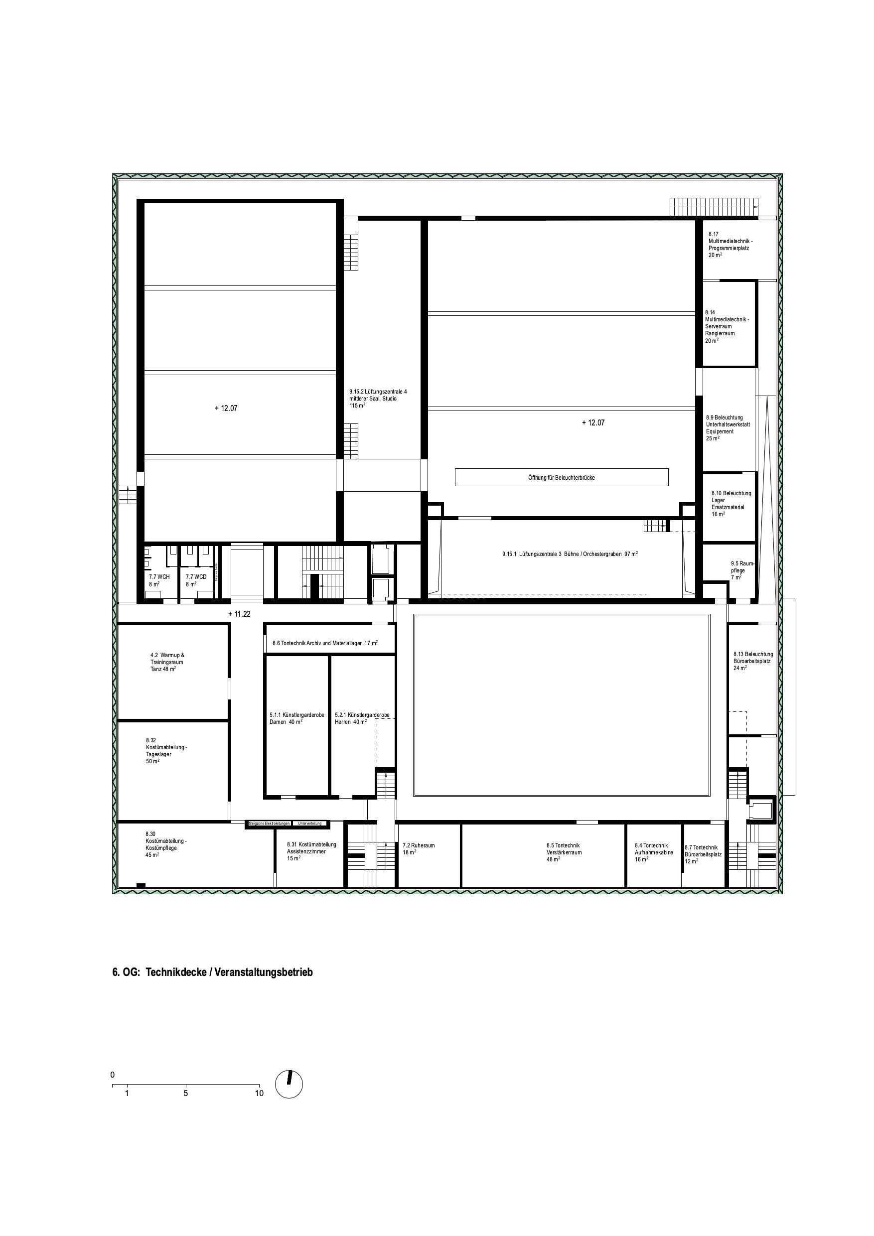
Die zudienenden Eingänge liegen seitlich hinten und an der Rückseite. Der Personaleingang an der Theaterstrasse erhält ein eigenes Entrée mit einem Empfang durch den Hausmeister. Die zwei Andockstellen für 20'-Container liegen in einem Raum mit Rolltor, damit sie dort auch länger stehenbleiben können. Die Andockstelle für den Sattelschlepper liegt in einer Nische mit Rolltor, wo sich auch das verglaste Büro der Betriebstechnik befindet. Die Anlieferung der Küchenprodukte liegt separat an der Nordwestecke, wo sie direkt in die Küche oder in Warenlift geliefert werden können. Dort befindet sich auch der Entsorgungsraum mit den Containern.

Der Fussabdruck des Gebäudes kann durch die gewählte Volumetrie so minimiert werden, dass das Pumpwerk und die grossen Abwasserkanäle nicht verlegt werden müssen.