Wettbewerb Schulhaus Freilager,  Zürich Albisrieden, 2016

 

Die Parzelle liegt in einem Gebiet mit unterschiedlichsten Bebauungsformen aus verschiedenen Zeiten. Im Nordosten befinden sich die grossen umgenutzten Industriebauten, während im Süden und Westen Genossenschaftssiedlungen mit geringerer Ausnützung sowie einzelne Solitärbauten vorherrschen.

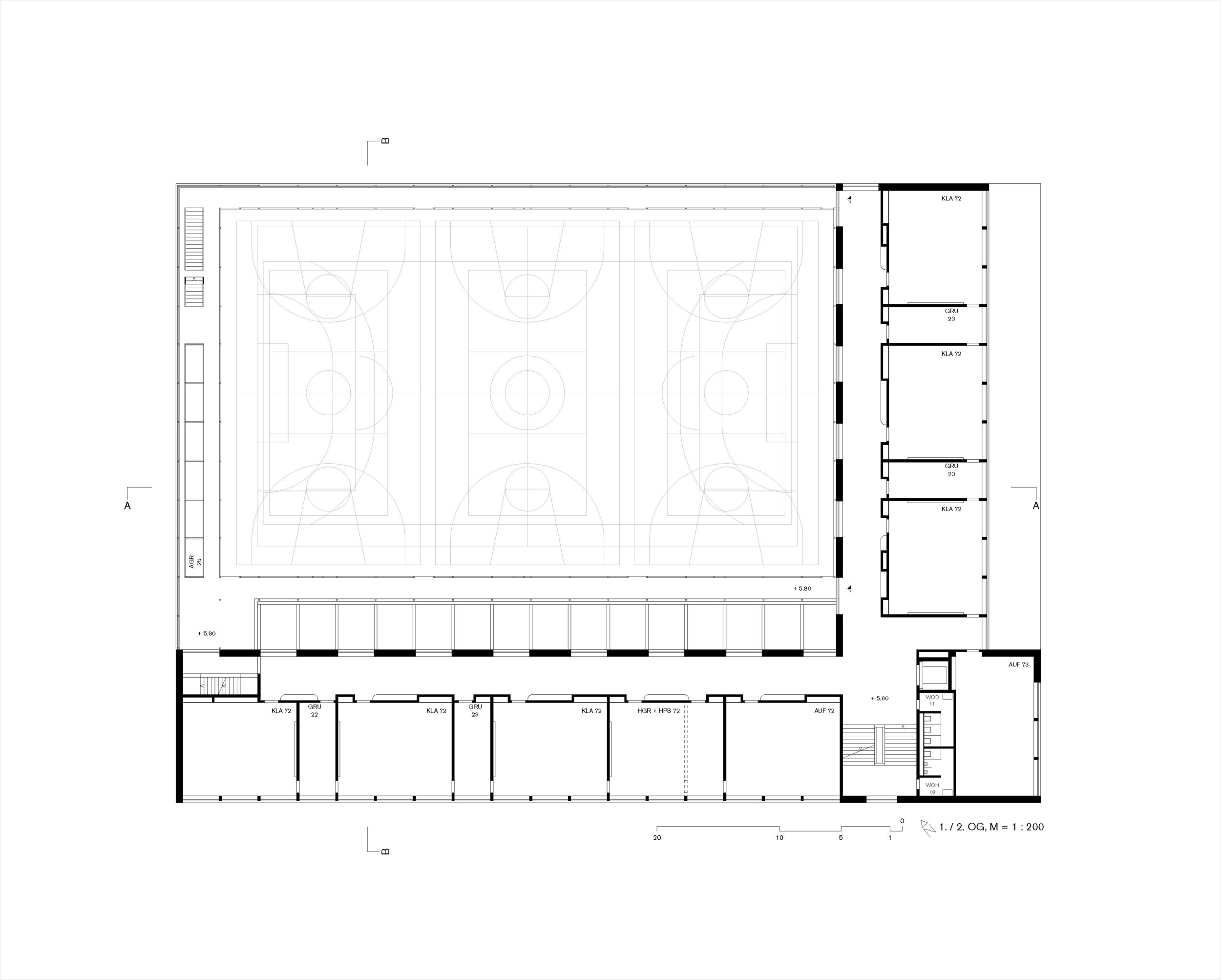
Um zwischen den verschiedenen Gebäudemasstäben zu vermitteln, bauen wir ein einziges kompaktes Volumen mit verschiedenen Höhenabstufungen. Der höhere zweischenklige Schultrakt nimmt die Schulnutzungen auf und umfasst auf seiner sonnenabgewandten Seite die übereinander geschichteten Sportflächen. An der Nahtstelle der Volumenteile liegt die alles durchquerende Erschliessung, die eine Vorder- und einen rückwärtigen Eingang schafft. Gegen die Park- und die Sportanlagen öffnet sich das Gebäude mit einem grosszügigen Säulengang, welcher als gedeckter Pausenplatz und als Veloabstellplatz dient.

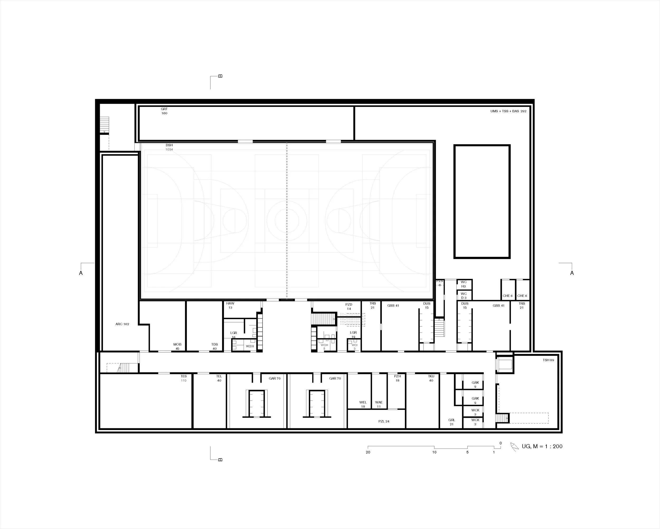
Von den beiden Eingängen gelangt man in die zentrale Erschliessungshalle. Sie wird von oben belichtet und erstreckt sich über die ganze Länge des Gebäudes. Ihr angegliedert sind alle gemeinsam genutzten Einrichtungen wie Turnhalle, Hallenbad und Mensa, sowie die beiden Treppenhäuser. Alle Schulzimmer sind nach Südosten oder Südwesten orientiert und von den Sportflächen abgewandt. Die Korridore bieten Ausblick auf den Allwetterplatz auf dem Dach der Sporthalle. Die Abgrenzung des Spielfelds erfolgt über zweiseitige Umgänge, welche zusätzlich als Fluchtweg und Zuschauertribüne dienen.

Die Konstruktion ist in 2 Teile gegliedert. Das Untergeschoss, das Erdgeschoss und die beiden Treppenhäuser mit dem angegliederten Nasszellenturm sind in Stahlbeton konstruiert. Auf den massiven Sockelgeschossen ruht der drei- und viergeschossige Holzbau, konstruiert aus Brettstapel-Verbunddecken und leimfrei verdübelten Brettstapelwänden. Diese Konstruktionen gewährt einerseits im Deckenbereich eine gute Schallabsorption und verleiht dem Gebäude andererseits trotz Holzbau eine beträchtliche Masse.   

Verschiedene Massnahmen tragen dazu bei, die Kosten unter Kontrolle zu behalten: Primär schafft die Unterbringung der meisten Nutzungen in ein Volumen Synergien. Es braucht zum Beispiel nur einen Lift und eine Lüftungsanlage. Zweitens spart der Holzbau in den Obergeschossen viel Zeit und Aufwand im Innenausbau, was die Mehrkosten des reinen Holzbaus mehr als kompensiert. Drittens werden die Obergeschosse natürlich gelüftet, sodass die kontrollierte Lüftung gespart wird. Da ein Schulhaus relativ viel Leerstandzeiten hat, kann diese Massnahme verantwortet werden. Kostentreibend ist hingegen der Standart Minergie-P Eco und dessen hoher Dämmstärke von 30 cm.

Die Landschaftsgestaltung gliedert den Perimeter mithilfe unterschiedlicher einheimischer Gehölze und Oberflächenbeschaffenheiten in verschiedene thematische Zonen und bietet den Schülern so unterschiedliche Rückzugsorte und Spielmöglichkeiten. Hochstämmige Baugruppen gliedern den Grünraumkorridor in verschiedene kleinräumliche Bereiche. Entlang des Sportplatzes werden Obstbäume gepflanzt, welche von den Schulklassen bewirtschaftet werden und als Ergänzung des Schülergartens auf dem Dach dienen. Der Bereich des freigelegten und renaturierten Baches wird mit spezifischen Bachgehölzen ergänzt. Der grosse Pausenplatz im Westen wie auch der Vorplatz beim Eingang bleiben weitgehend offen und geben den Blick aufs Schulhaus frei, um für eine klare Orientierung zu sorgen. Die Schüler und die Quartierbewohner erhalten so eine breite Palette an unterschiedlichen Örtlichkeiten mit jeweils anderen Aufenthaltsqualitäten.