Wettbewerb Naturmuseum St. Gallen 

Das Grundstück liegt am Kreuzungspunkt der beiden Verkehrssysteme Rorschacherstrasse und Autobahn. Das übergeordnete System der Autobahn hat keinen Zusammenhang mit der gewachsenen Baustruktur und bietet keinen Anhaltspunkt zur besseren Einbindung. Deshalb wird das Naturmuseum an die Baulinie der Rorschacherstrasse gestellt. Das Gebäude mit seiner Höhe von 28 Metern, dem kompakten Volumen und der edlen Materialisierung ergänzt die bestehende Baustruktur und bildet einen neuen Kristallisationskern im Gewebe der Stadt. 

Die Kirche, das Naturmuseum und die Gebäude des botanischen Gartens bilden die Eckpunkte eines zusammenhängenden Parkes, der trotz der noch dazwischenliegenden Wohnbebauung stark spürbar sein wird. Der neue Park wird eine beträchtliche Ausdehnung haben und legitimiert den Massstabssprung des neuen Naturmuseums. 

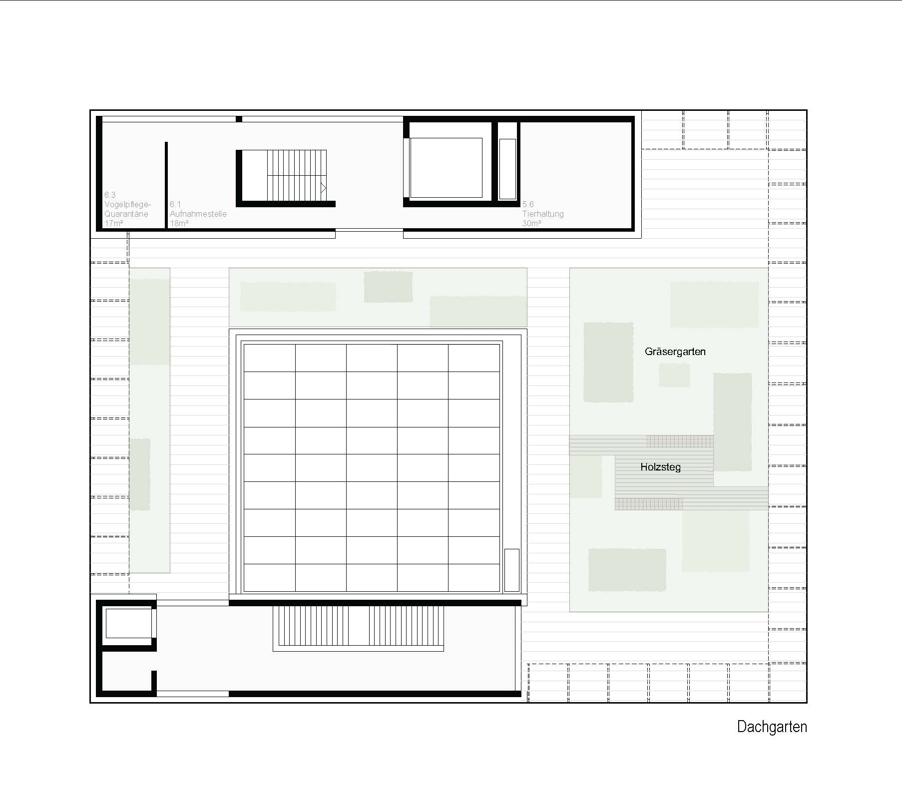
Die Bedingungen, ein Gebäude nach Minergie-P-Eco Vorgaben zu bauen, sind im Wesentlichen ein kompaktes Volumen, naturnahe Baustoffe, eine gut gedämmte Hülle, keine Tiefgarage sowie die Lüftung. Das kompakte Volumen wird durch die vertikale Stapelung der Nutzungen erreicht. Der Verzicht auf eine Tiefgarage reduziert das Volumen auch unterirdisch. Das Gebäude ist mit einem hohen Anteil von naturnahen Baustoffen konstruiert. Die durch die Liftschächte und Erdbebenwände ausgesteifte Betonrahmenkonstruktion wird mit Brettstapeldecken und Backsteinwänden ausgefacht und mit 30 cm Dämmmaterial eingehüllt. Ein Dachgarten kompensiert den Verlust an Terrain. 

Die Fassadenkonstruktion weist auf den Inhalt des Museums hin. Die das Gebäude hüllende halbtransparente Schicht besteht aus eloxiertem Aluminium mit ausgeschnittenem Federmotiv. Die Inspiration für das Motiv lieferten die beiden Vögel Star und Bienenfresser in der bestehenden Ausstellung. Die einzelnen Bleche sind mit einem Rapport entlang den Federn versehen und werden an den Ecken abgekantet, so dass das Motiv sowohl rundum wie oben durchgehend verläuft. Auf dem Dachgarten dient das Blech als Überdeckung der Umgänge. Die im Licht schimmernde Hülle wirkt kostbar und bildet das Gegengewicht zu der erhabenen Erscheinung der Kirche. 

Die Anlieferung und Parkierung wird auf der NO- und NW-Seite abgewickelt, so dass zwischen dem Naturmuseum und der Kirche ein grosszügiger, ungestörter Freiraum entsteht. Der Forschungsteich wertet den Aussenbereich des Cafés auf.

Der rollstuhlgängige, chaussierte Weg unterteilt die Aussenanlage in mehrere Räume, in welchem jeweils unterschiedliche Nutzungen stattfinden. Wegbegleitende Hecken verstärken diesen Eindruck zusätzlich. Im Randbereich entstehen kleine Aufenthaltsplätze, von welchen aus der Blick in die jeweiligen Aussenraumbereiche schweifen kann. Die Bereiche zwischen den Wegen werden mit einer artenreichen Blumenwiese begrünt.

Auf die Pflanzung von grösseren Gehölzen wird im zentralen Bereich verzichtet. Die Sichtbeziehungen zur Kirche bleiben somit trotz der feinen Gliederung des Hanges gewährleistet. Auf den Grünflächen der Dachterrasse entsteht ein Ziergräser-Garten. In einer Fläche aus bodendeckenden Gräsern werden unterschiedliche Gräsersorten in rechteckigen Feldern gepflanzt. Es entsteht ein Spiel mit Formen, Farben und dem Zusammenspiel der geometrisch angelegten Flächen. Vor den Volièren bieten sich Sitzgelegenheiten an. Über einen Holzsteg können die Besucher durch die Gräserfelder hindurchgehen und diese erleben. 

Landschaftsarchitekt:      Dardelet GmbH, Egg

Fassadengestaltung:       Andreas Hurr, Zürich

Bauingenieur:                 HMK Kuhn  AG, Dietikon

Energieingenieur:           Helbling Beratung + Bauplanung AG, 8048 Zürich